第01版:特刊

版面概览

下一版   

 

2020年03月16日 星期一

 
 

放大  缩小  默认    下一篇

 

征收加速度 居民齐做主踊跃来投票 共圆旧改梦

黄浦区新昌路1号、7号地块旧城区改建房屋征收项目即将启动第一轮意愿征询

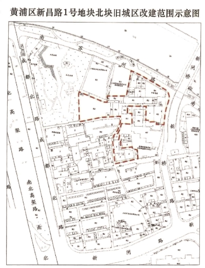
黄浦区新昌路1号地块北块旧城区改建范围示意图
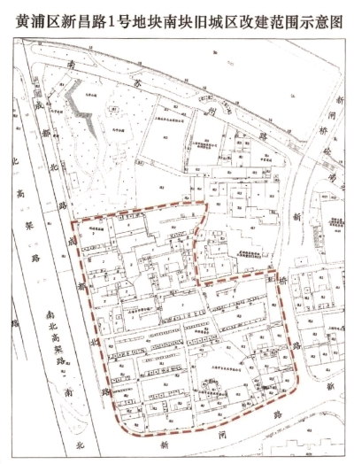
黄浦区新昌路1号地块南块旧城区改建范围示意图
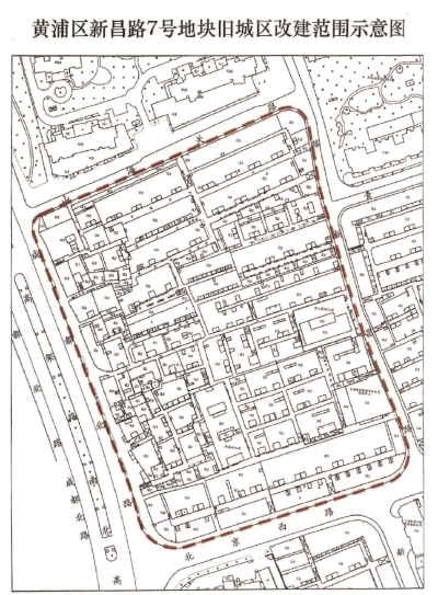
黄浦区新昌路7号地块旧城区改建范围示意图

新昌路1号、7号地块涉及新桥、三德两个居委。该地块总占地面积5.3万平方米,需改造各类旧房建筑面积约9.8万平方米;地块内房屋多为砖木混合结构的二级以下旧里,房屋年代久远,消防安全隐患十分突出,群众居住环境较为简陋,各种生活配套设施较为缺乏,群众要求改善居住生活条件的呼声十分强烈。

盼旧改、盼征收、盼了多少年,在市、区领导的积极推动下,征收喜讯终于到来了。

旧区改造能否顺利进行,第一轮意愿征询是前提。只有当第一轮意愿征询同意比例达到90%以上,方能启动房屋征收第二轮方案征询签约等后续工作。只有当第一轮意愿征询高比例通过,才可以为房屋征收工作创造良好的氛围,奠定坚实的基础。因此,我们希望居民群众充分珍惜、牢牢抓住来之不易的机遇,积极参与,踊跃投票,支持征收工作的推进,共迎美好生活!

疫情防控小贴士

1、为防止人员集聚风险,请各位居民接居委通知后,按照约定时间准时到达指定地点办理房屋征收有关事项。

2、居民须佩戴口罩前往,并配合做好体温测量等防疫措施;若有发烧、咳嗽等不适症状,请暂缓前往,并告知居委。

3、每户居民尽量只派一名代表前往,不扎堆、不聚集,请依次排队,并保持安全距离。

 

 

上 海 报 业 集 团      版 权 所 有

社区晨报南京东路